Stokkum, 2022
Natuurboerderij Wittenhorst
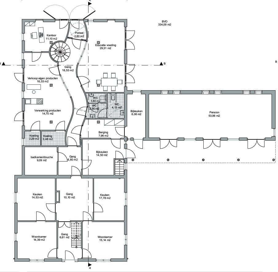
De natuurboerderij met zijn kleinschalige gebouwen en percelen vormt een tijdsdocument in het landschap. Ingeklemd tussen het Bergherbos en de herverkavelde weilanden van het Stokkumer broek is de historie hier tastbaar. De gebouwen van de natuurboerderij hebben nog een menselijke maat en zijn gelegen aan een karakteristiek karrenpad dat vrij toegankelijk is voor wandelaars en fietsers. In de open schuur komt een rustpunt dat aanhaakt bij het klompenpad in samenwerking met “Stokkum in het groen en “landschapsbeheer Gelderland”. Het varkenshuis uit de jaren 50 is duurzaam omgebouwd tot mantelzorgwoning en in de toekomst pension voor cursisten en vrijwilligers. Natuurwaarden worden versterkt door projecten zoals botanisch hooiland en kruidenrijk akkerranden beheer. Sinds 2018 zijn er nestkasten geplaatst voor steenuil en kerkuil. Rond het erf zijn karakteristieke landschapselementen aanwezig zoals een hakhoutbos, een hoogstam boomgaard en kleinschalige cultuurgronden. Op de boerderij wordt natuurinclusief gewerkt. Via een voedselcooperatie worden er eieren en vlees verkocht en gevolgd door noten en fruit van de aanplant. Behalve voedselproductie worden er cursussen gegeven. Ook andere ondernemers kunnen op de boerderij hun diensten aanbieden, zoals kindercoaching met paarden. Op deze manier krijgt het voormalige rundveebedrijf nieuwe gebruikswaarden. Momenteel zijn wij de plannen aan het maken voor de toenmalige schuur. In dit deel komt een winkel, cursusruimte, kantoor, opslag van voedsel, toiletten en een vergaderruimte.
Dit project vloeit voort uit de ontwerpprijsvraag brood en spelen waarbij dit project (weet wat je eet) een winnaar was. Voor meer informatie over de Natuurboerderij Wittenhorst via hun site bij media hieronder.
Extra informatie
- TypeRenovatie boerderij
- StatusBouwaanvraag
- Aannemern.t.b.
- Projectteamlid
Media
- Prijvraag brood en spelenBrood en spelen
- Natuurboederij WittenhorstWittenhorst




