site-loge-1
site-loge-1
  • Home
  • Over Ons
    • Bureau
    • Visie
      • Helend Bouwen
      • Woonlandschappen
      • Ecologische Materialen
      • Zelfvoorzienend wonen
    • Werkwijze
    • Inspiratie
  • Werk
    • Projecten
    • Hobby projecten
    • Maquette bouw
  • Actueel
    • Nieuws
    • Publicaties
    • Lezingen
    • Studie en innovatie
  • Contact
    • Contact

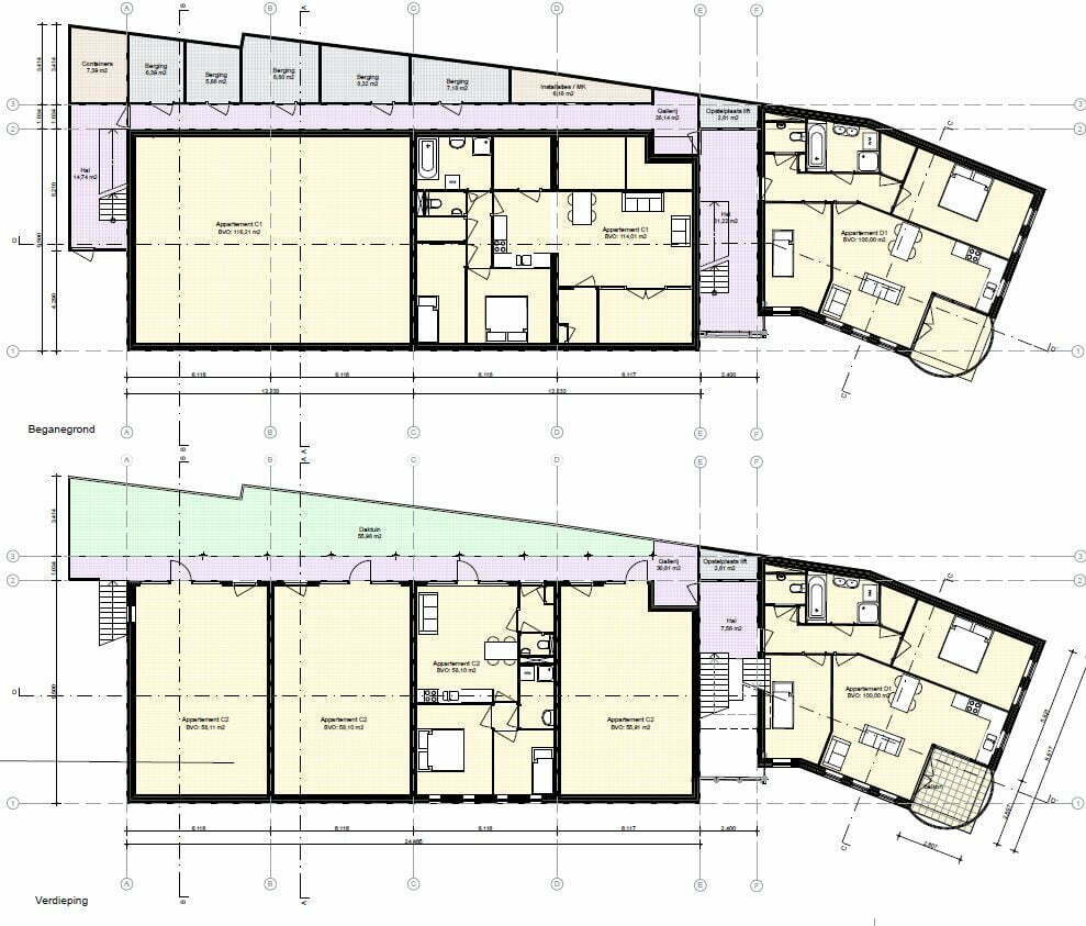
Gilze, 2015

9 appartementen

20 mei 2021
Stichting Zorgboerderij De Mare
Sanitaire ruimte natuurcamping De Duiventros

Extra informatie

Media

Bij Van Laarhoven Combinatie Architecten worden de gebruikers en de opdrachtgevers nauw betrokken bij het ontwerpproces. Lees meer over ons bureau

Menu
  • Home
  • Visie
  • Projecten
  • Nieuws
Over van Laarhoven Combinatie
  • Bureau
  • Contact
Contact

Van Laarhoven Combinatie
Alphenseweg 65
5126 AB GILZE (Nederland)
+31(0)161 45 10 21


2026 Van Laarhoven Combinatie – Architectuur & Landschap DNR Professionele WordPress website door: KLIK3