Biest-houtakker, 2018
Ecologische schuurwoning
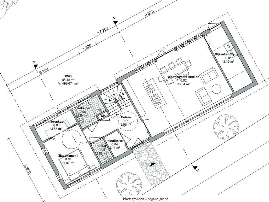
Een ecologische woning in een ander jasje: 'een ecologische schuurwoning'. Eenvoud van vorm, materialen en detaillering zijn belangrijke uitgangspunten bij deze ontwerpvraag. Door grote verschillen in het programma van de begane grond en 1e verdieping is het idee ontstaan om de kap schuin te laten lopen, hierdoor worden m3 bespaard. De wanden bestaan uit HSB met houtvezelisolatie en worden afgewerkt met traditionele houten delen. Het dak wordt tevens geïsoleerd met houtvezelisolatie, het kaphout komt in het zicht en de toplaag bestaat uit sedum.
Extra informatie
- Type:Woonhuis
- Status:Ontwerpfase
- Projectteamlid:Nick van Dijke









