Zevenbergen, 2002-2005
Ontwerp verbouwing/uitbreiding woning
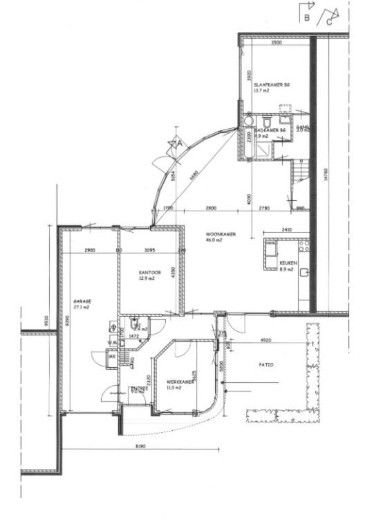
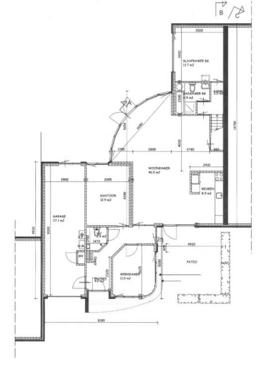
Ontwerp voor een uitbreiding en verbouwing van een woonhuis waarbij een bijzonder en contrasterend volume aan de bestaande bebouwing is toegevoegd.
Extra informatie
- Type:Aanbouw woning
- Status:Ontwerp



